KAPCSOLATFELVÉTEL
Ingatlan jellege
családi ház
Belső terület
130 m²
Telek terület
500 m²
Tájolás
délnyugat
Építési állapot
használt
Építési mód
vegyes
Szobák száma
5 szoba
Szobák elhelyezkedése
külön nyílik min. 2 szoba
Épület szintje
földszintes.
Épült
kb. 1950
Ingatlan állapot
kívül: átlagos
belül: felújított
Fűtés
gázkonvektor
Komfort
összkomfort
Parkolás
van, nem meghatározott
Közműállapot
csatorna: bekötve
gáz: bekötve
villany: bekötve
víz: bekötve
Energetika
nincs megadva
Pest megye, Tököl
Irányár
Szobák
Terület
Telek terület
Az ingatlan 1939-ben épült, vegyes falazattal és beton alappal, masszív szerkezettel és 60–70 cm vastag falakkal rendelkezik. Az évek során folyamatos karbantartáson esett át, így stabil és lakható állapotban van.
A 130 m²-es lakótér jól átgondolt elrendezésű, több bejárattal, akár két külön lakrész is kialakítható benne. Vagy több lakás.
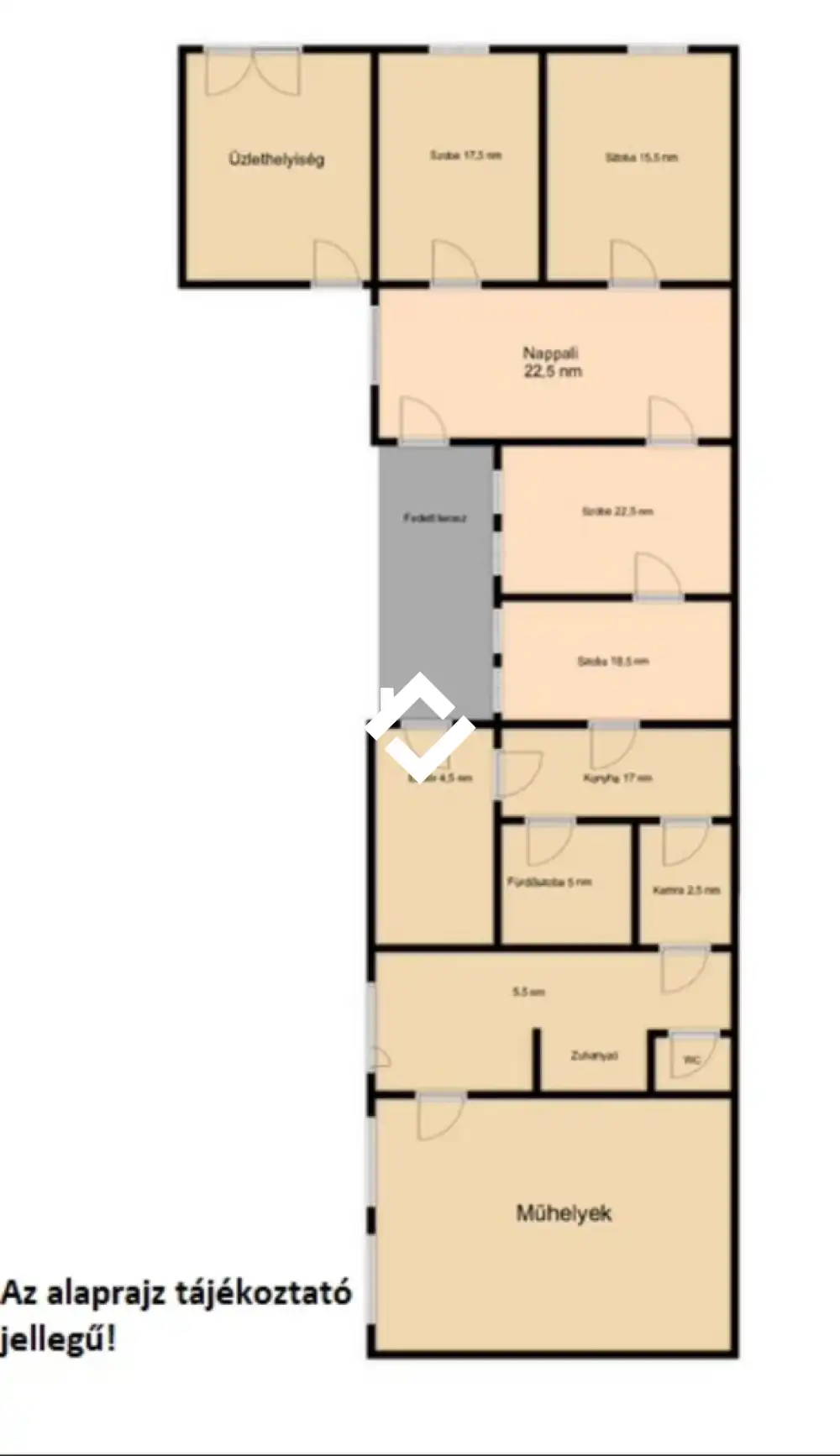
Helyiségek:
Nappali: 22,5 m²
Szoba: 22,5 m²
Szoba: 18,5 m²
Hálószoba 1: 17,5 m²
Hálószoba 2: 15,5 m²
Konyha: 17 m²
Előtér: 4,5 m²
Fürdőszoba: 5 m²
Kamra: 5 m²
Közlekedő + zuhanyzó, WC, kézmosó: 5,5 m²
A lakóépülethez két műhely és egy kb. 20 m²-es utcafronti üzlethelyiség is tartozik, melyek autószervizre, egyéb vállalkozásra, illetve akár garázsként is használhatók.
Az üzlet és a műhelyek külön bejáratúak, a lakórésszel egy fedett közlekedő köti össze őket.
A saroktelken elhelyezkedő ingatlan kiváló befektetési lehetőség is:
akár több lakásos ház, vállalkozás és otthon egy helyen, vagy bérbe adható egységek is kialakíthatók.
Elhelyezkedés:
Tököl egyik legfrekventáltabb pontján, a Piac tér közvetlen közelében, kiváló közlekedéssel és láthatósággal.
A környéken minden fontos szolgáltatás gyalogosan elérhető, az M0 autóút és a HÉV is gyorsan megközelíthető.
További előnyök:
Hitelezhető ingatlan
Tágas, napfényes terek
Több bejárat, több funkció
Üzleti és lakó célra is ideális
A műhelyek garázsként is hasznosíthatók
Befektetők, vállalkozók, többgenerációs családok számára egyaránt remek lehetőség!
Bankfüggetlen hitelszakértőnk áll rendelkezésére: Belák Ilona Kinga
belül: felújított
gáz: bekötve
villany: bekötve
víz: bekötve

+36 20 227 7335
b.ilonakinga@gmail.com
KAPCSOLATFELVÉTEL
Ingatlan jellege
családi ház
Belső terület
130 m²
Telek terület
500 m²
Tájolás
délnyugat
Építési állapot
használt
Építési mód
vegyes
Szobák száma
5 szoba
Szobák elhelyezkedése
külön nyílik min. 2 szoba
Épület szintje
földszintes.
Épült
kb. 1950
Ingatlan állapot
kívül: átlagos
belül: felújított
Fűtés
gázkonvektor
Komfort
összkomfort
Parkolás
van, nem meghatározott
Közműállapot
csatorna: bekötve
gáz: bekötve
villany: bekötve
víz: bekötve
Energetika
nincs megadva